Weehawken NJ Residence
Located at the edge of Lincoln Harbor’s pier development, this two-story condominium offers sweeping 270-degree views of the Manhattan and Jersey City skylines.
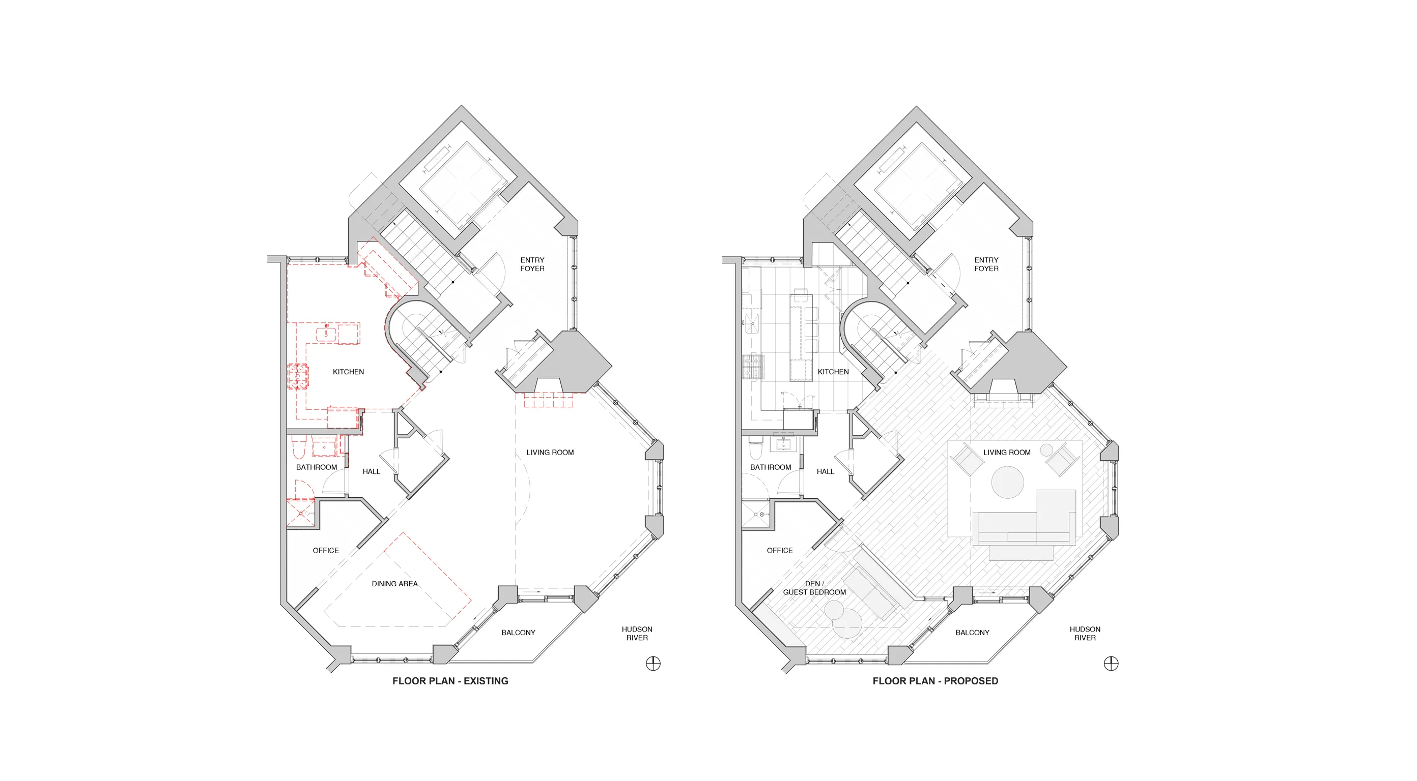
We partnered with the homeowners to complete a full renovation of the kitchen, living room, wood-burning fireplace, two bathrooms, and an additional bedroom—bringing their minimalist aesthetic to life while maximizing storage for a growing family.
To address the home’s unique geometry, we designed custom millwork that transformed underutilized nooks into functional shelving and cabinetry. A neutral palette of Calacatta stone, light oak, and black and stainless-steel accents complements the view, while curated lighting and thoughtful detailing—like the reimagined curved staircase—bring cohesion and warmth to this contemporary space.














